公司介紹:
萬新電氣有限公司始建于2004年,位于鄭洛新國家自主創新示范區—新東產業集聚區,是國家高新技術企業、國家科技型中小企業、市規模以上工業企業、電力協會標委會成員單位。
萬新電氣占地40余畝,建筑面積3.8萬平方米,擁有員工300余人,擁有國內優良電子產品生產線,先后與河南工學院、西安交大、 國網電科院、中電科等院校建立了深度的產學研合作。
萬新智慧工廠以創新為核心競爭力,推行人才戰略計劃,現擁有各類優良技術人員90余人,其中工程師及以上40余人,各類優良技能人員50余人。并相繼建立了“省市級工程技術研究中心”,相關發明50余項,申請科技成果20余項。多年來專注于電能質量、電力儀表、電子產品(OEM與ODM)的研發和制造,為肯尼亞、印度、波蘭等國家長期提供可靠的技術支持。公司是國內優先設計生產汽車點焊無功補償控制器的廠家,系列產品銷量更是處于行業領跑地位。
服務項目:精益車間布局規劃+智能化規劃
項目目標:
實現工廠數據規范化、標準化
生產車間、布局,信息化、數據化
多工廠多組織的資料完整配置
產品信息化,可配置,可擴展
項目內容:
本規劃項目涉及對工廠進行整體規劃,規劃內容包含對車間精益布局規劃、水電氣設計與布局規劃、車間物流AGV配送規劃、智能化電子倉庫規劃等服務內容,實現工廠數據規范化、標準化,可滿足未來公司高速擴張的生產需求。
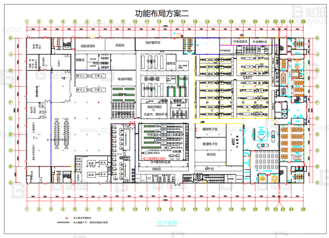
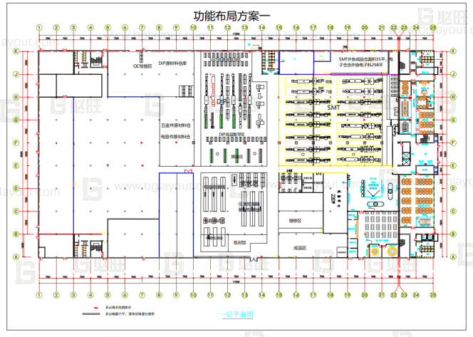
整體布局規劃方案:
.png)
.png)
.png)
選擇多樣,提供三個方案供客戶選擇,最終結合整體投資回報分析,選擇一版最合適企業戰略發展的方案!
.png)
車間布局圖
.png)
車間電力規劃
.png)
布局實施計劃-嚴控時間節點
.png)
AGV配送規劃
.png)
電子料倉SMD智能料架方案:實現物資可視化管理,防止物資使用和歸還錯誤,提高作業效率&準確率、追溯機制,提升精細化管理。
現場效果圖:
.png)



項目預估效益:
必旺智能科技為萬新電氣量身打造一個精益化、智能化、自動化及信息化的現代化工廠。項目開展過程中得到客戶各位領導和員工的高度認可和贊揚,車間人均效率提升20%,物流距離縮短40%,生產及倉儲通過自動化設計人員減少5%,庫容提升30%,生產現場5S及目視化管理顯著提升。
蘇州礦山機械領軍企業精益改善優秀成果展現 博革于2021年10月正式與蘇州創力達成合作,簽署精益布局項目,旨在全面改造升級齒輪車間,歷時4個月完成前期規劃,另根據規劃項目歷時1年改造完成,現新車間已經投入使用,并且達到預期目標。 /news/4855.html
博革攜手江東金具設備制造,精益咨詢管理改善促生產 江東金具決定與上海博革咨詢達成協議:由上海博革咨詢為江東金具進行工廠布局規劃和目視化設計工作。項目定位為打造絕緣子行業國內領先、行業標桿的智能化、自動化燈塔工廠。 /news/4866.html
國內PPE行業領軍企業賽立特園區精益布局 博革自2022年起為賽立特提供精益管理服務,助力企業搭建精益管理體系,推動精益化管理落地見效,從而全面轉型升級,提升企業競爭力。本次項目從2024年10月進駐,經過調研分析,圍繞園區整布局 /news/4864.html

.png)
.png)
.png)